- bereits verkauft -
Zwei moderne Doppelhaushälften
in Massivbauweise mit Südausrichtung
Siedlerweg 2 in 73492 Rainau-Schwabsberg

Die preiswerte Alternative zum freistehenden Einfamilienhaus!
Auf einem schön gelegenen, 627 qm großen Bauplatz mitten in 73492 Rainau-Schwabsberg werden wir demnächst zwei optisch sehr ansprechende Doppelhaushälften in bewährter Massivbauweise errichten.
Der Baubeginn kann erfolgen, sobald beide Doppelhaushälften veräußert wurden und die Baugenehmigung erteilt ist.
Dieses Bauprojekt zeichnet sich durch folgende Merkmale aus:
- Solide und werterhaltende Massivbauweise mit Top-Ausstattung
- Südausrichtung in zentraler Ortskernlage, voll unterkellert
- Modern und hell gestaltet mit versetztem Pultdach und großem Dachstudio
- Erdgas -Brennwerttherme mit Solarunterstützung
- Anteil regenerativer Energien auf Wunsch ausbaubar
- Garage am Haus und auf Wunsch um Carport/Geräteraum erweiterbar
- Große Südterrasse über die ganze Hausbreite mit betonierter Terrassenplatte
- Für Jung und Alt, Kapitalanleger oder Eigennutzer gleichermaßen geeignet
- Planänderungen, Sonderwünsche und Eigenleistungen möglich
- Kostenlose Planungsberatung und Finanzierungsunterstützung
- Erstvermietungsservice für Kapitalanleger kostenlos
- Hervorragende Infrastruktur am Ort gegeben: Bahnhof, Kindergarten, Grundschule, Halle, Bäcker, Vereine, Sportanlagen sowie das im ganzen Ostalbkreis beliebte Bade- und Freizeitareal „Bucher Stausee“ – alles in fußläufiger Entfernung vom Bauplatz
- Provisionsfreier Verkauf direkt vom Bauträger!
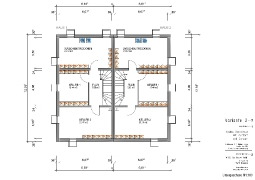
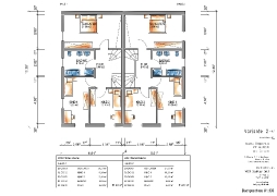
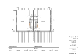
Ansichten und Grundrisse
Die genannten Preise verstehen sich:
- Inkl. Grundstücksanteil, Vollkeller, Terrasse, Teilungs- und Vermessungskosten, Baugenehmigungsgebühren, Statik, Energiepass, öffentlichen Erschließungsbeiträgen und Entwässerungs- Hausanschluss
- Zzgl. 12.500,- € je zugeordneter Garage
- Zzgl. den Hausanschlusskosten der überörtlichen Versorgungsträger
- Zzgl. den Vermessungskosten für die Fortführung des Liegenschaftskatasters
Fälligkeit des Kaufpreises:
Der Kaufpreis ist ein Festpreis für die Ausführung gem. Bau- u. Leistungsbeschreibung. Er ist analog zum Baufortschritt in Raten zur Zahlung fällig. Die jeweiligen Raten werden durch uns rechtzeitig beim Käufer angefordert.
Eigenleistungen:
Bei Eigenleistungen wird der dafür vorgesehene Betrag vom Festpreisangebot in Abzug gebracht.
Nebenkosten:
Mit folgenden vom Erwerber zu tragenden Nebenkosten des Erwerbs ist zu rechnen:
- Grunderwerbsteuer: 5,0 % vom Kaufpreis
- Notar/Grundbuchkosten: ca. 1,5 % vom Kaufpreis
Zu beachten:
Für den Fall, dass sich während der Bauzeit der Mehrwertsteuersatz ändert, ändert sich auch der Kaufpreis in gesetzlich zulässiger Weise.
Eventuelle Eintragungen in den Bauplänen (Treppen, Wege, Mauern, Zäune, Sträucher, Möbel etc.) dienen nur der grafischen Darstellung und Erläuterung. Sie sind nur dann Vertragsbestandteil, wenn sie ausdrücklich in der Bau- u. Leistungsbeschreibung erwähnt sind.
Der Energieausweis auf Basis der aktuell gültigen ENEV/EEG befindet sich derzeit in der Vorbereitung.
Anmerkung:
Über die in den Verkaufspreisen enthaltene hochwertige Basisausstattung hinaus, bieten wir auf Wunsch auch gerne Erweiterungsoptionen an. So z.B. zusätzlichen Festbrennstoff-Kaminzug für Schweden- oder Kachelofen, Erweiterung der Solaranlage zur Heizungsunterstützung, alternativ mit Photovoltaik, Regenwasserzisterne, Carport, Sichtputz, etc.